Prodej bytu 3+1, lodžie, 73 m2, po kompletní rekonstrukci, ulice Švermova, Beroun
Jana Korejsová
E-mail: jana.korejsova@rkberoun.cz
Tel.: +420773133183
Odkaz na Mapy.cz
Stav: Aktivní
Lokalita: Beroun
Cena: 6 460 000 Kč za nemovitost
Číslo zakázky: 0777
Popis:
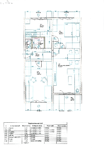
V exkluzivním zastoupení majitele nabízím kompletně kompletně zrekonstruovaný byt o velikosti 3+1 s lodžií o celkové výměře 73 m2 v ulici Švermova, Beroun - sídliště. Byt je v osobním vlastnictví a nachází se ve čtvrtém patře panelového domu s novým výtahem. Kompletní rekonstrukce zahrnuje nové rozvody elektřiny, sádrokartonové stropy, nové omítky, nové dveře, vstupní dveře jsou bezpečnostní, podlahy, zděné jádro s novou koupelnou se sprchovým koutem, samostatné WC. Dispozičně je byt velmi prakticky řešen. Z centrální předsíně se vchází do ložnice, do obývacího pokoje, vstup do dětského pokoje je buď z kuchyně nebo z ob. pokoje. Pokoj s lodžií je orientován na jih, kuchyně a dětský pokoj na sever. Kuchyň je bez kuchyňské linky, vše je nově připraveno na vlastní výběr kuchyňské linky. Na podlahách je v chodbě dlažba, v pokojích jsou zrenovované parkety. Vytápění i ohřev vody jsou centrální. K bytu náleží sklepní kóje, mezi společné prostory patří sušárna a kolárna. Příjemné jsou i měsíční náklady, které činí 4 500 Kč + zálohy na elektřinu. V blízkosti bydliště je škola, školka, Kaufland, Billa, Penny Market, sportovní centrum Eden a koupaliště, za domem je pěkné dětské hřiště, parkování je možné přímo před domem. Výborné autobusové nebo vlakové spojení do Prahy, autobusová zastávka je několik minut od bydliště.
Nájem celkem: 4 500 Kč
Typ vlastnictví: Osobní
Budova druh: Panelová
Počet pater: 6
Byt patro: 4
Stav budovy: Velmi dobrý
Stav bytu: velmi dobrý, po rekonstrukci
Velikost bytu: 3+1
Plocha celkem: 73 m2
Jádro: nové zděné
Okna: plastová
Topení: ústřední dálkové
Lodžie: ano
Sklep: ano
Výtah: ANO
Parkování: před domem
Energetický štítek: D - Méně úsporná



